MK Jewellers Thrissur

PROJECT INFORMATION
PROJECT NAME: MK Jewellers
ARCHITECT:
CONCEPT: Modern Jewellery
LOCATION: Thrissur
Share:

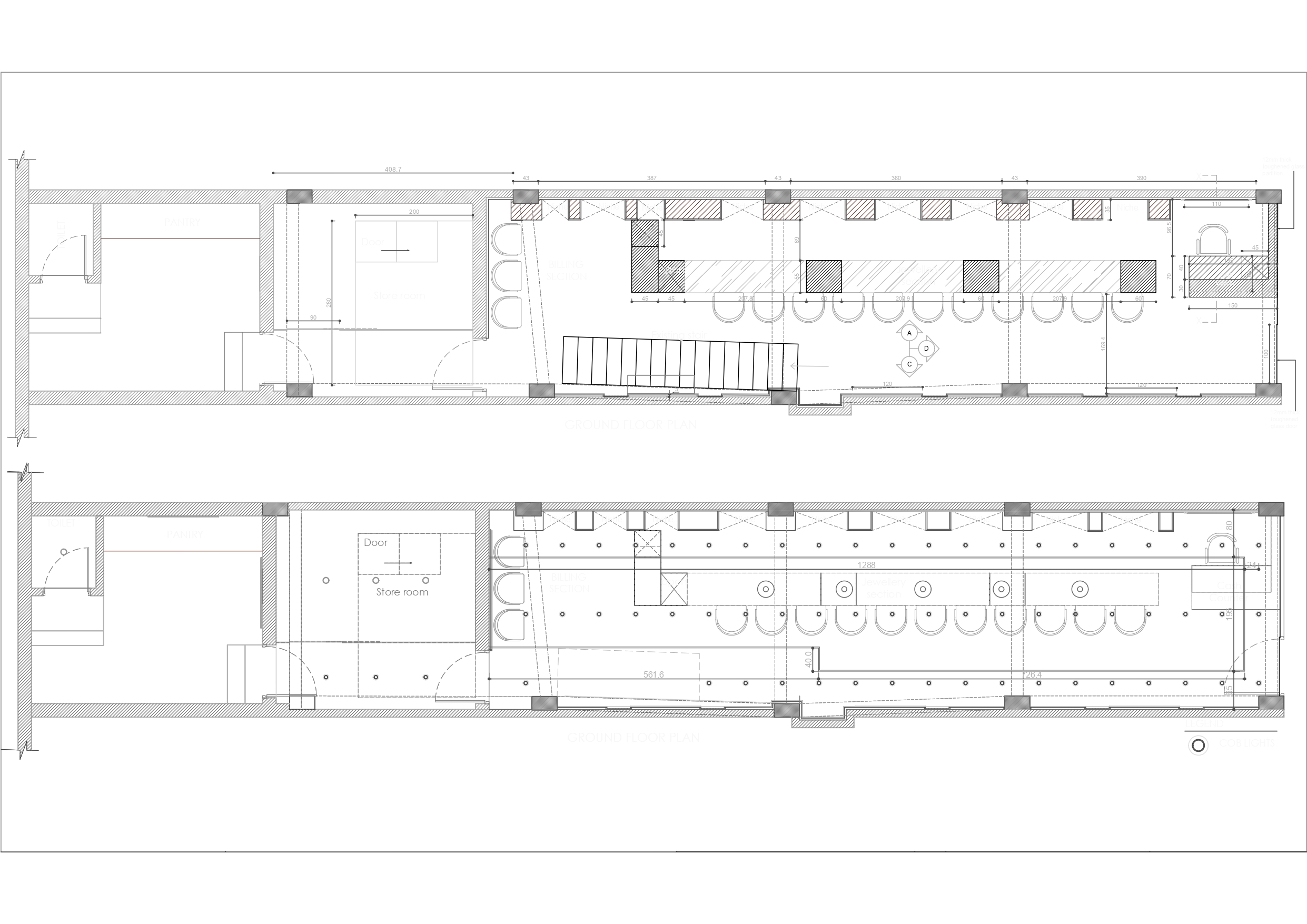
MK Jewellers, Thrissur

An elegant retail space crafted to reflect the timeless beauty and luxury of fine jewelry. Located in the heart of Thrissur, this project blends contemporary design with opulent detailing to elevate the customer experience.

PROJECT CONCEPT

A showroom that sparkles with:

  • Grand façade design with gold-toned accents and illuminated branding
  • Thoughtfully planned display zones enhancing visual storytelling
  • Luxurious interiors with a balanced use of mirror, glass, and textures

MK Jewellers offers an immersive retail journey — where design sophistication meets traditional richness in every square foot.

RK Dezign is a full-service design firm offering comprehensive architectural solutions.

Contact Info
Office Address

NH 544, Mannuthy, Thrissur, 680651

UP
Select the fields to be shown. Others will be hidden. Drag and drop to rearrange the order.
  • Image
  • SKU
  • Rating
  • Price
  • Stock
  • Availability
  • Add to cart
  • Description
  • Content
  • Weight
  • Dimensions
  • Additional information
Click outside to hide the comparison bar
Compare