Office Interior Kunnamkulam

PROJECT INFORMATION
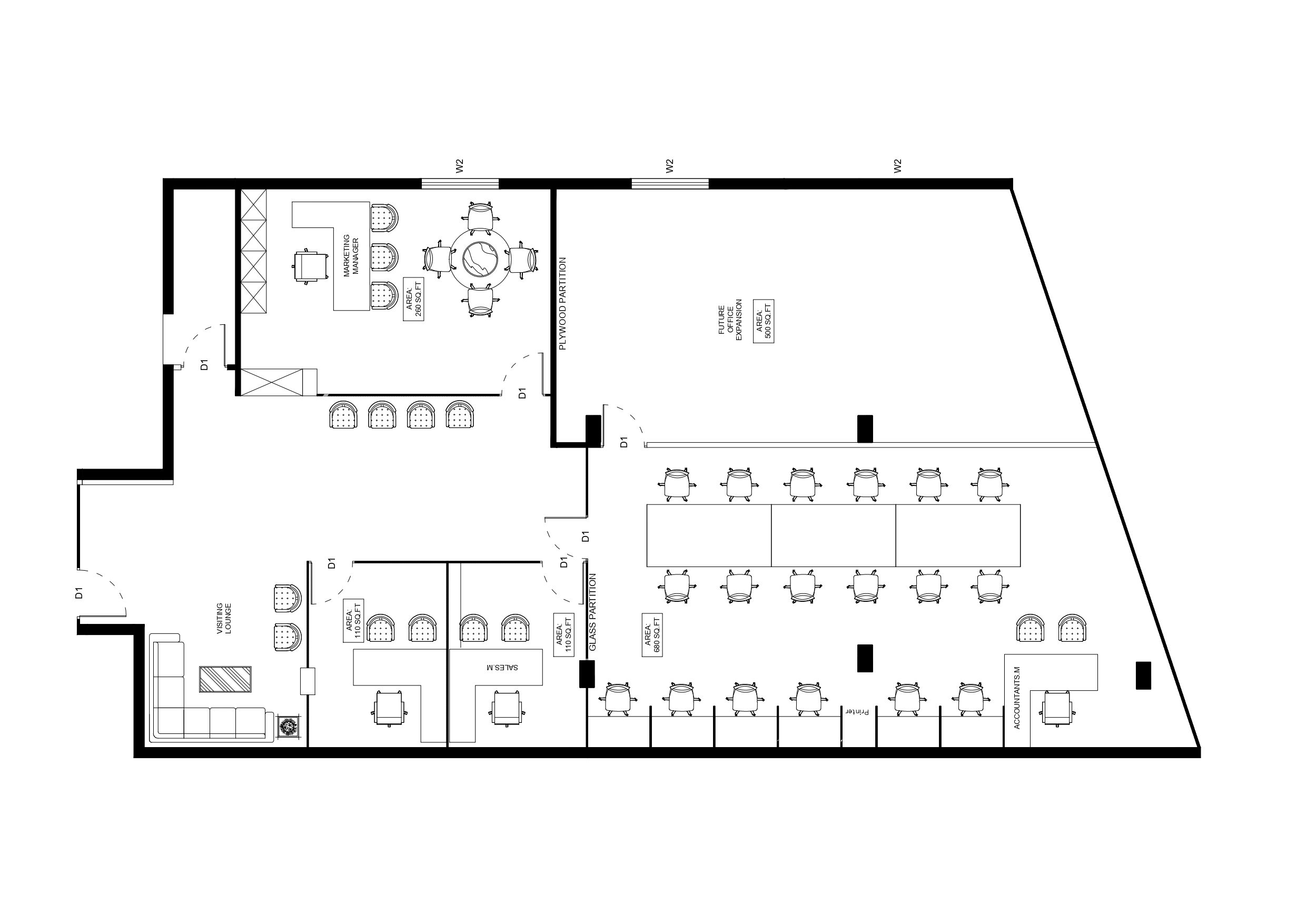
PROJECT NAME: Office Interior – Kunnamkulam
ARCHITECT:
CONCEPT: Modern Ofiice Space
LOCATION: Kunnamkulam
Share:

Office Interior – Kunnamkulam

A workspace crafted for clarity and collaboration—this office interior in Kunnamkulam embraces clean lines, warm textures, and seamless functionality.

Design Intent

Blending simplicity with professionalism, the design maximizes natural flow and comfort for extended productivity.

  • Streamlined dual workstation layout
  • Warm wood paneling for visual continuity
  • Acoustic ceiling with balanced lighting
  • Ergonomic detailing for everyday ease

A tailored environment by RK Dezign where aesthetics meet purpose.

RK Dezign is a full-service design firm offering comprehensive architectural solutions.

Contact Info
Office Address

NH 544, Mannuthy, Thrissur, 680651

UP
Select the fields to be shown. Others will be hidden. Drag and drop to rearrange the order.
  • Image
  • SKU
  • Rating
  • Price
  • Stock
  • Availability
  • Add to cart
  • Description
  • Content
  • Weight
  • Dimensions
  • Additional information
Click outside to hide the comparison bar
Compare