Masjid, Kozhikode

PROJECT INFORMATION
PROJECT NAME: Masjid, Kozhikode
ARCHITECT:
CONCEPT: Modern Mosque
LOCATION: Kozhikode
Share:

Masjid, Kozhikode

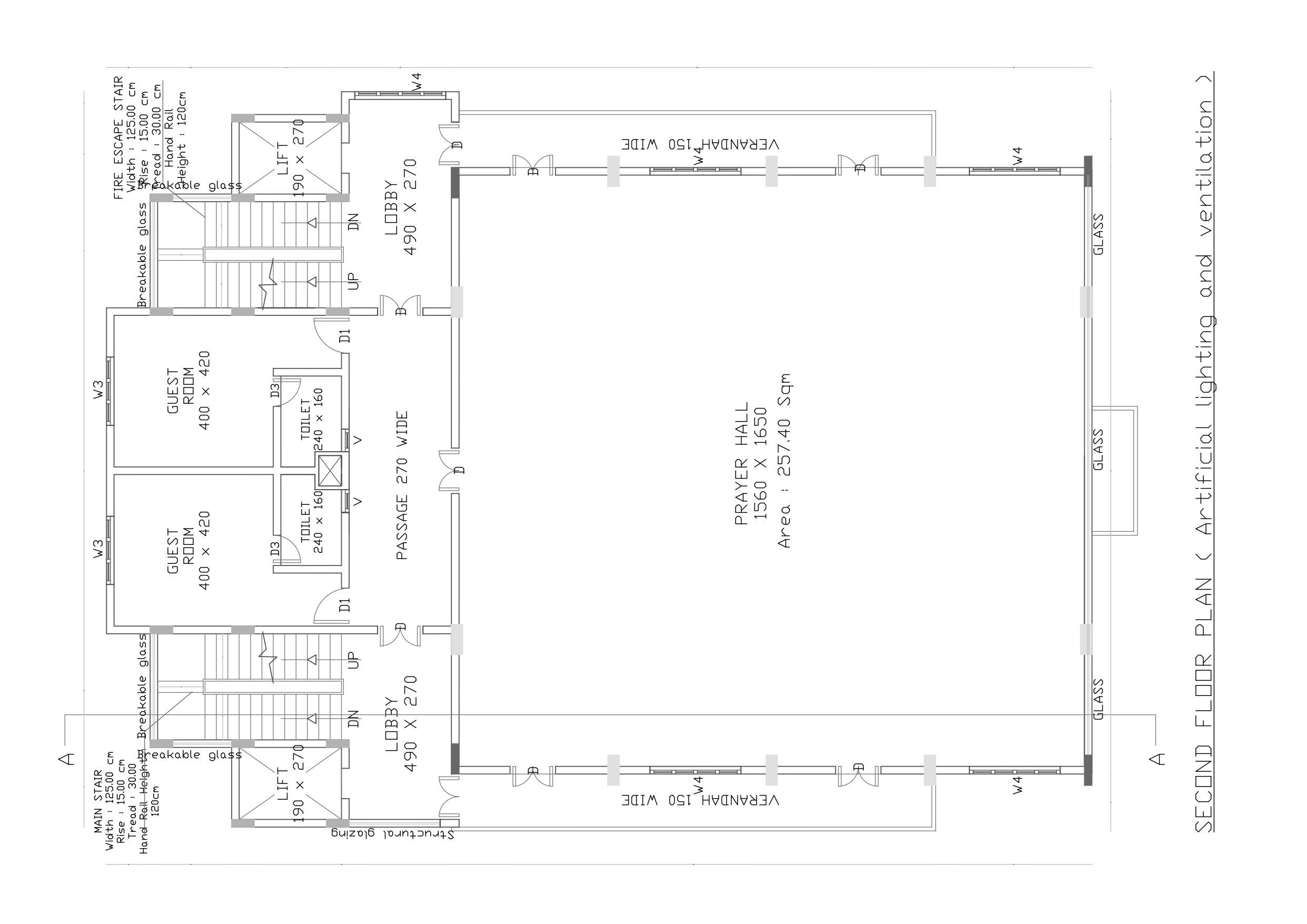
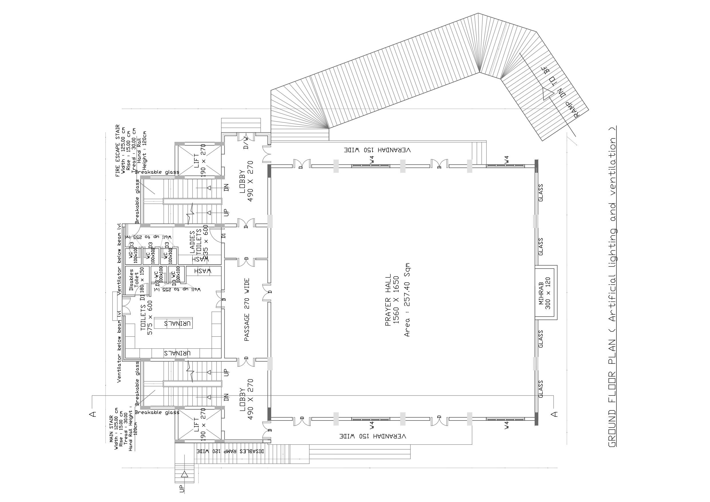
A serene architectural expression of spiritual purpose and cultural identity, this mosque in Kozhikode is designed with an emphasis on symmetry, light, and elegance — merging timeless Islamic motifs with modern structural aesthetics.

PROJECT CONCEPT

A sanctuary of peace designed with:

  • Graceful domes and minarets inspired by traditional Islamic architecture
  • Intricate jaali work and archways for ventilation and ornamentation
  • Illuminated exteriors enhancing the mosque’s prominence at dusk

This Masjid stands as a beacon of faith and harmony, designed to inspire and unite the community it serves.

RK Dezign is a full-service design firm offering comprehensive architectural solutions.

Contact Info
Office Address

NH 544, Mannuthy, Thrissur, 680651

UP
Select the fields to be shown. Others will be hidden. Drag and drop to rearrange the order.
  • Image
  • SKU
  • Rating
  • Price
  • Stock
  • Availability
  • Add to cart
  • Description
  • Content
  • Weight
  • Dimensions
  • Additional information
Click outside to hide the comparison bar
Compare