Hairodent Clinic, Calicut

PROJECT INFORMATION
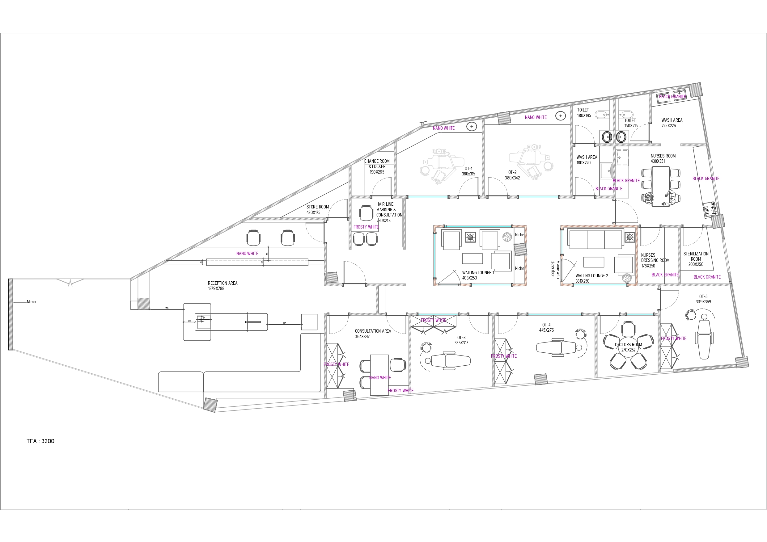
PROJECT NAME: Hairodent Clinic
ARCHITECT:
CONCEPT: Modern Clinic
LOCATION: Calicut
Share:

Hairodent Clinic, Calicut

Where innovation meets wellness in a calm, contemporary clinical setting.

PROJECT CONCEPT

Crafted to reflect care, hygiene, and professionalism:

  • Sleek, modern interiors for a welcoming patient experience
  • Zonal planning for seamless flow between treatment areas
  • High-functionality lighting and sterilized material palette
  • Branding elements subtly integrated into the design

Hairodent Clinic combines aesthetics and purpose, ensuring both trust and comfort from the first step inside.

RK Dezign is a full-service design firm offering comprehensive architectural solutions.

Contact Info
Office Address

NH 544, Mannuthy, Thrissur, 680651

UP
Select the fields to be shown. Others will be hidden. Drag and drop to rearrange the order.
  • Image
  • SKU
  • Rating
  • Price
  • Stock
  • Availability
  • Add to cart
  • Description
  • Content
  • Weight
  • Dimensions
  • Additional information
Click outside to hide the comparison bar
Compare