PROJECT INFORMATION
Kalathode Mahalluh L.P. School
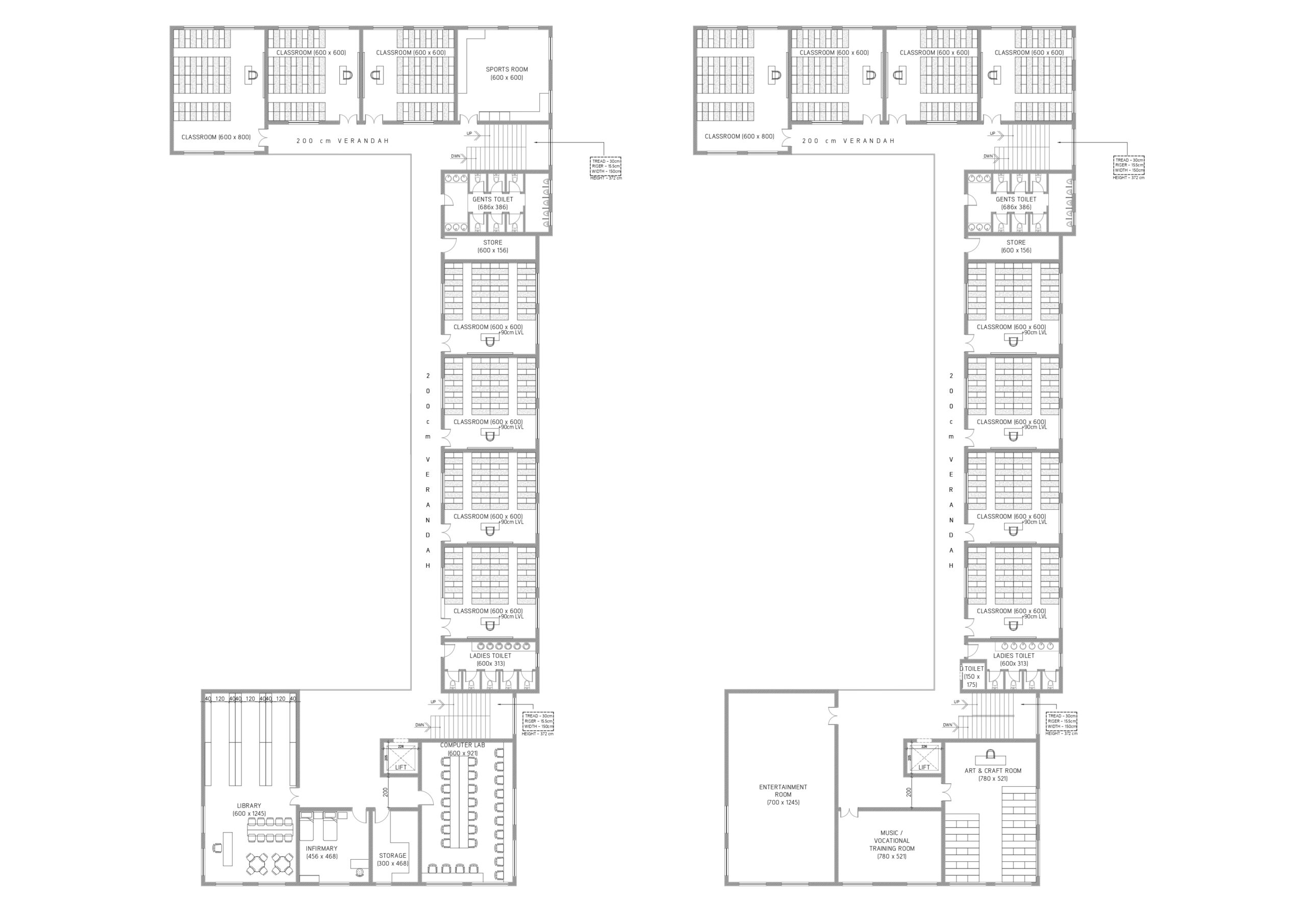
Located in the heart of Kalathode, Kerala, this Lower Primary School stands as a testament to functional design fused with institutional elegance. RK Dezign envisioned a space that fosters early education in an environment that is both welcoming and structured—setting the tone for young learners.
PROJECT CONCEPT
The design for Kalathode Mahalluh L.P. School was driven by a strong commitment to modern educational architecture. The structure blends simplicity and symmetry, offering natural lighting, spacious corridors, and optimized classroom layouts that encourage learning and interaction.
- Focus on maximizing daylight for natural brightness throughout the building
- Seamless accessibility with wide verandas and thoughtfully planned entrances
- Aesthetic balance between tradition and modernity in elevation and material palette
RK Dezign ensured that the school’s design not only serves its academic purpose but also inspires community pride and long-term functionality.