PROJECT INFORMATION
Apartment Muthuvara
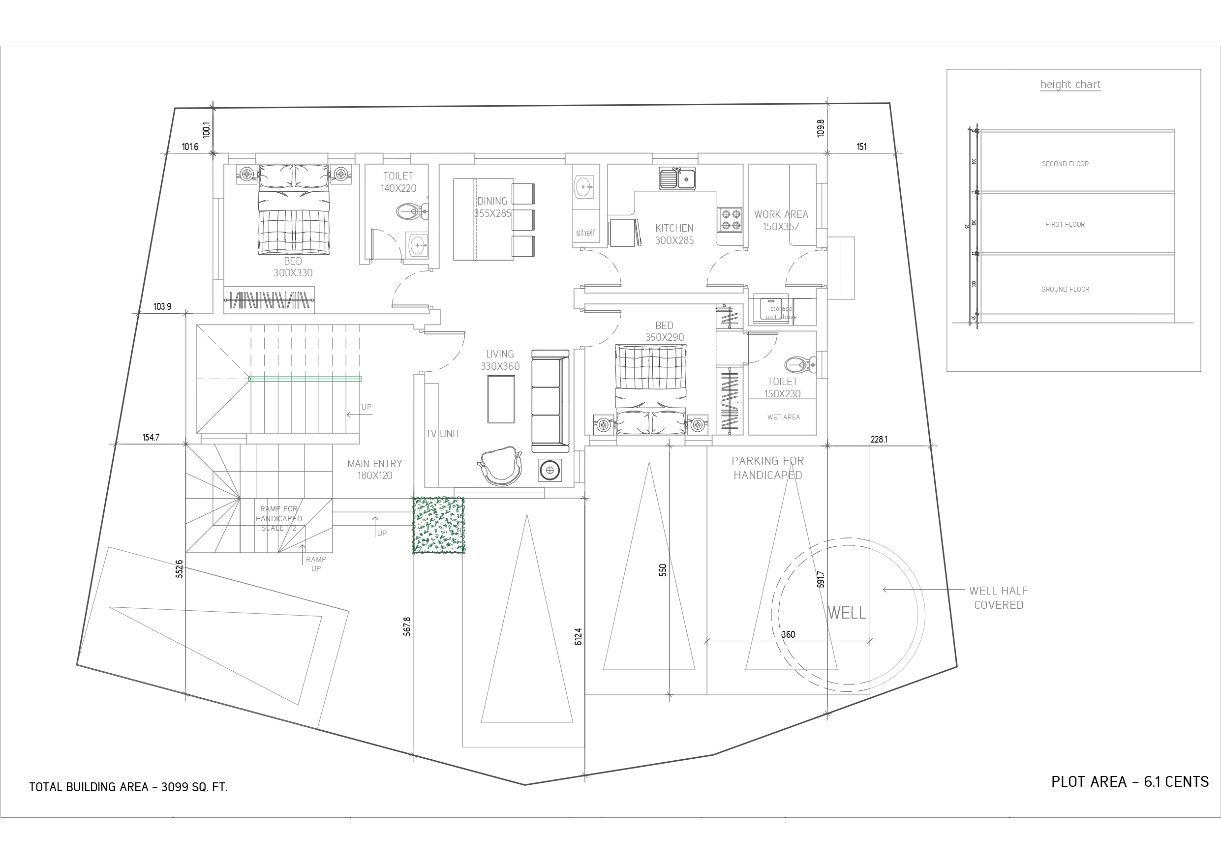
This modern apartment project at Muthuvara reflects a minimalistic yet functional design language tailored for urban comfort and spatial efficiency. With clean lines and thoughtfully proportioned volumes, the design prioritizes usability without compromising on style.
PROJECT CONCEPT
A design that interprets modern living with:
- A clean geometric form for contemporary urban appeal
- Maximized natural lighting and ventilation in each unit
- Carefully composed façade with neutral tones and textures
Blending elegance with purpose, the apartment delivers on both form and function — a fitting addition to the evolving skyline of Muthuvara.