Residence at Wadakkanchery

PROJECT INFORMATION
PROJECT NAME: Residence at Wadakkanchery
ARCHITECT:
CONCEPT: Modern Residence
LOCATION: Wadakkanchery
Share:

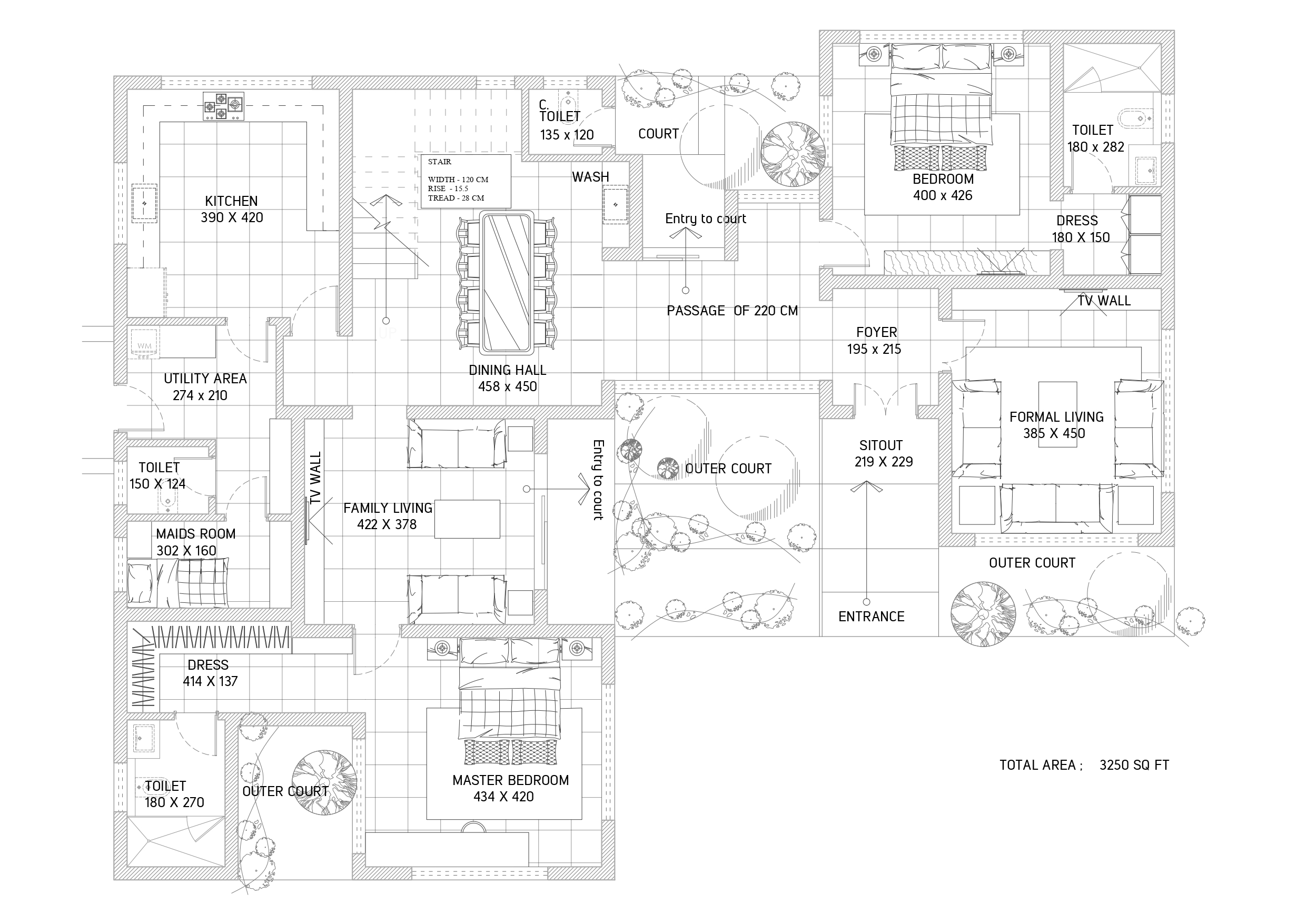
Residence at Wadakkanchery

This private residence nestled in Wadakkanchery, Kerala, reflects a sophisticated interpretation of modern tropical architecture. Designed to cater to a growing family’s lifestyle, the project emphasizes openness, comfort, and a seamless connection with nature.

PROJECT CONCEPT

This home was conceptualized with a focus on elegant spatial flow and functional minimalism. The residence integrates regional sensibilities with contemporary aesthetics to create a warm and tranquil living space.

  • Open-plan interiors with natural light and cross-ventilation
  • Blend of traditional courtyard charm and modern design elements
  • Customized layout reflecting the client's personal lifestyle and preferences

RK Dezign curated this residence as a peaceful retreat that harmonizes structure and soul, setting a new standard for modern living in Kerala.

RK Dezign is a full-service design firm offering comprehensive architectural solutions.

Contact Info
Office Address

NH 544, Mannuthy, Thrissur, 680651

UP
Select the fields to be shown. Others will be hidden. Drag and drop to rearrange the order.
  • Image
  • SKU
  • Rating
  • Price
  • Stock
  • Availability
  • Add to cart
  • Description
  • Content
  • Weight
  • Dimensions
  • Additional information
Click outside to hide the comparison bar
Compare