Residence at Nellankara

PROJECT INFORMATION
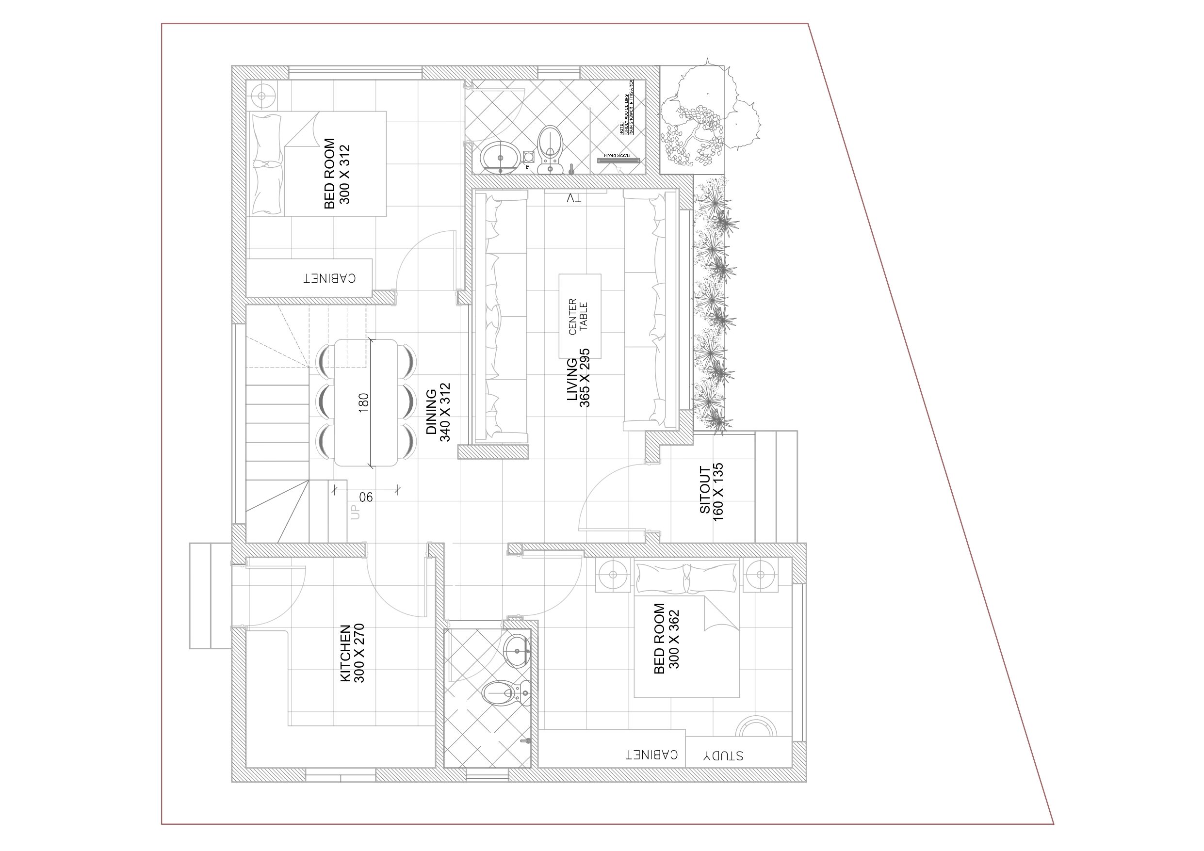
PROJECT NAME: Residence at Nellankara
ARCHITECT:
CONCEPT: Modern Residence
LOCATION: Nellankara
Share:

Residence at Nellankara

With a striking façade of full-height glazing framed by a bold A-line roof, the Residence at Nellankara is a celebration of modern minimalism and natural openness. This home redefines transparency by blending the exterior with the interior through expansive glass and a refined material palette.

PROJECT CONCEPT

The design is both a visual statement and a functional retreat—drawing natural light deep into the living spaces while offering uninterrupted views of the surrounding greenery.

  • Gable glass elevation for an iconic, modern profile
  • Indoor-outdoor synergy with shaded sit-outs and skylit zones
  • Balanced use of wood, stone, and glass for warmth and elegance

A poetic response to lifestyle and location, RK Dezign’s Nellankara residence elevates comfort through simplicity and light.

RK Dezign is a full-service design firm offering comprehensive architectural solutions.

Contact Info
Office Address

NH 544, Mannuthy, Thrissur, 680651

UP
Select the fields to be shown. Others will be hidden. Drag and drop to rearrange the order.
  • Image
  • SKU
  • Rating
  • Price
  • Stock
  • Availability
  • Add to cart
  • Description
  • Content
  • Weight
  • Dimensions
  • Additional information
Click outside to hide the comparison bar
Compare